Mit großem Garten: Repräsentatives, sehr gemütliches Ein- bis Zwei-Familienhaus in guter Lage von Alten-Buseck
Schulstraße 21, 35418 BuseckHaus (A4002)
Beschreibung
Willkommen Zuhause! In diesem Domizil für die ganze Familie wohnen Sie stilvoll und großflächig in guter Lage von Alten-Buseck. Dieses charmante Haus aus dem Jahre 1961 liegt auf einem ca. 1.427 m² großen Grundstück und bietet auf einer Wohnfläche von ca. 277,47 m² viel Platz für die ganze Familie.
Es erstreckt sich über zwei Etagen, die beide separat abschließbar sind und jeweils über einen eigenen Eingang verfügen. Diese Flexibilität eröffnet zahlreiche Nutzungsmöglichkeiten, sei es als geräumiges Einfamilienhaus oder als Zwei- bis Dreifamilienhaus - hier finden Sie ein neues Zuhause ganz nach Ihren individuellen Vorstellungen.
Aktuell ist diese besondere Immobilie wie folgt aufgeteilt:
Sie betreten das Haus über eine robuste, massive Holzeingangstür und treten zunächst in den gemauerten Windfang ein, der den Übergang zum großzügigen Flur bildet. Hier können Sie idealerweise Ihre Garderobe unterbringen. Auch das Gäste-WC befindet sich hier.
Das Herzstück des Hauses ist der helle, große und offene Wohn- und Essbereich, der richtig viel Platz für die ganze Familie bietet. Egal ob gemütliche Sofaecke mit TV-Bereich oder Esstisch, Sie haben auf jeden Fall viel Platz, den Raum sowohl gemütlich und funktional zu gestalten.
Praktischerweise befindet sich die Küche direkt neben dem Essbereich. So sind kurze Wege und eine optimale Nutzung garantiert.
Sowohl vom Wohn- und Essbereich als auch von der Küche gelangen Sie auf die großzügige Terrasse. Diese ist perfekt für sommerliche Grillabende und entspannte Nachmittage im Freien. Seitlich der Terrasse befindet sich ein kleiner Abstellraum für die Aufbewahrung von Gartenwerkzeug oder Grillutensilien und Kinderspielzeug.
Überhaupt, der schöne Garten! Er lädt zum Entspannen ein und bietet viel Platz für Kinder zum Toben und Spielen. Zusätzlich gibt es eine Grünfläche am Eingangsbereich des Hauses. Hier befindet sich ein weiterer Freisitz, der vielfältig genutzt werden kann – sei es als zusätzlicher Sitzbereich für Gäste, als ruhiger Ort zum Lesen oder für das morgendliche Frühstück im Freien.
Wieder zurück im Haus ist besonders hervorzuheben, dass der an den Wohnbereich angrenzende Raum über eine Theke verfügt und sich damit auch ideal für Partys und Familienfeiern eignet. Dieser Bereich ist perfekt, um Gäste zu bewirten und gesellige Abende zu verbringen.
Noch ein Plus: Hier befindet sich auch ein Kamin, der an kalten Tagen für eine behagliche Atmosphäre sorgt.
Das Badezimmer im Erdgeschoss ist mit einem Whirlpool, einer Dusche, einem Doppelwaschbecken sowie einem WC ausgestattet und dient so als eigene Wellnessoase.
Zwei weitere Zimmer im Erdgeschoss eignen sich hervorragend als Schlafzimmer und Ankleidezimmer.
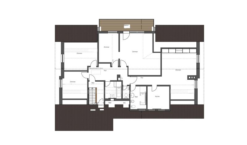
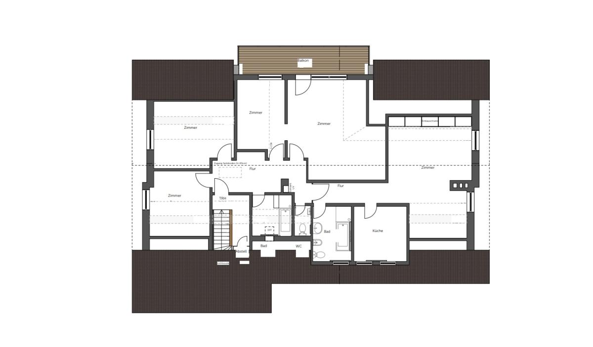
Weiter geht es mit dem Dachgeschoss. Dieses bietet insgesamt fünf vielseitig nutzbare Zimmer – egal ob zusätzliches Schlafzimmer, Home-Office, Hobbyräume oder Gästezimmer, Sie haben die Wahl. Das Wohnen von mehreren Generationen ist in diesem Haus aufgrund seiner Großzügigkeit kein Problem.
Eines der Zimmer hat Zugang zum Balkon mit herrlichem Blick auf die Umgebung. Hier ist auch eine Küche vorhanden, die individuell eingerichtet werden kann.
Im Dachgeschoss befinden sich zwei Bäder, die jeweils mit einer Badewanne, einer Dusche, einem WC sowie einem Waschbecken ausgestattet sind. Eines der Badezimmer verfügt über ein Doppelwaschbecken. Ergänzend zu den beiden Bädern gibt es im Dachgeschoss ein separates WC.
Das Haus ist vollständig unterkellert und bietet mit insgesamt sieben Kellerräumen reichlich Platz für Hobbys und viele Stauraummöglichkeiten. Die vielseitig nutzbaren Kellerräume eignen sich ideal für Heimwerkerprojekte, als Werkstatt oder Lagerraum für Ihre persönlichen Schätze.
Eine großzügige Waschküche ist ebenfalls vorhanden und bietet ausreichend Platz für Waschmaschine, Trockner und Wäschepflege. Hier können Sie Ihre Wäsche bequem waschen, trocknen und sortieren.
Vom Keller aus gelangt man direkt nach draußen, was sich als besonders praktisch für Gartenarbeiten oder den Transport von Gegenständen erweist. Sie können Gartenwerkzeuge und -materialien problemlos hinein- und hinaustragen oder nach einem Spaziergang im Garten direkt von draußen in den Keller eintreten, ohne Schmutz ins Haus zu bringen.
Zudem befindet sich im Untergeschoss noch eine Garage.
Für Kapitalanleger besteht die Option, die Immobilie in drei eigenständige Einheiten umzuwandeln. Die Eigentümer haben dazu bereits Pläne von einem Architekten erstellen lassen.
Im Erdgeschoss könnte eine großzügige 4 Zimmer-Wohnung mit einer Fläche von ca. 151 m² entstehen. Ein großer Wohn- und Essbereich mit angrenzender Küche lädt zu gemütlichen Stunden mit Familie und Freunden ein. Besonders schön ist hier auch der direkte Zugang auf die Terrasse und in den Garten. Drei weitere Zimmer können gut als Kinder-, Gäste- oder Arbeitszimmer genutzt werden. Komplementiert wird die Einheit durch ein Badezimmer und ein separates Gäste-WC.
Über einen separaten Eingang könnte die zweite separate Wohnung im Dachgeschoss entstehen. Geplant ist ein großer Wohn-/Essbereich mit offener Küche, zwei Kinder- oder Arbeitszimmern sowie ein Schlafzimmer mit Ankleidezimmer und angrenzendem Badezimmer. Zusätzlich ist ein weiteres Badezimmer vorgesehen.
Eine weiter Wohnung könnte dort entstehen, wo sich aktuell die Garage und ein Teil der Kellerräume befindet. Hier hätte man Platz für eine 2 Zimmer-Wohnung mit Küche und Badezimmer. Um hier die Raumhöhe einzuhalten, müssten die Bodenplatte und der Eingangsbereich im Hof um ca. 16 cm gesenkt werden.
Bitte beachten Sie, dass die Pläne lediglich mögliche Varianten darstellen und dass Änderungen der Nutzung zunächst mit den entsprechenden Behörden abgestimmt werden müssen.
Weiterhin befindet sich auf dem Grundstück eine Doppelgarage für die Unterbringung Ihrer Fahrzeuge.
Die Immobilie wurde im ursprünglichen Bauantrag als Einfamilienhaus mit Erdgeschoss und Kellergeschoss genehmigt. In den 80er-Jahren wurde das Gebäude, ohne dokumentierte Genehmigung, im Obergeschoss erweitert. Auch der Keller wurde um Räumlichkeiten erweitert. Hierzu wurde von den Eigentümern bereits eine Baugenehmigung eingereicht und genehmigt, da die Genehmigung wie ein Neubau bewertet wird, müssen bei einer Sanierung die neusten energetischen Standards beachtet werden.
Fazit:
Dieses Haus bietet alles, was man sich für ein komfortables Familienleben wünscht: Großzügige Wohnflächen, flexible Nutzungsmöglichkeiten, einen weitläufigen Garten und eine gute Lage. Ob als Einfamilienhaus oder als Zwei- bis Dreifamilienhaus – hier können Sie Ihren Wohntraum verwirklichen.
Gerne zeigen wir Ihnen diese Immobilie bei einem individuellen Besichtigungstermin und beantworten alle weiteren Fragen.©Claus R. Menges GmbH
Lage
Buseck ist eine beliebte und charmante Gemeinde im Landkreis Gießen. Die Schulstraße verbindet ruhiges, familienfreundliches Wohnen mit einer sehr guten Anbindung und attraktiven Infrastruktur.
Das Haus befindet sich in einem ruhigen Wohnviertel, das vor allem von Ein- und Zweifamilienhäusern geprägt ist und so eine angenehme und familiäre Atmosphäre bietet. Trotz der ruhigen Lage ist man gut an die Infrastruktur angebunden, denn in
Buseck finden Sie eine solide Grundversorgung: Kindergärten, Schulen und Spielplätze sind in wenigen Minuten erreichbar, was die Lage besonders attraktiv für Familien macht.
Zudem bietet die Gemeinde ein aktives Gemeindeleben mit kulturellen Einrichtungen und ortsansässigen Vereinen, ideal für ein harmonisches, dörflich geprägtes Umfeld.
Einkaufsmöglichkeiten, Schulen, Kindergärten und weitere Einrichtungen des täglichen Bedarfs sind bequem zu Fuß oder mit dem Fahrrad erreichbar.
Für den täglichen Bedarf liegen Einkaufsmöglichkeiten, Apotheken und lokale Dienstleister in fußläufiger Nähe oder mit dem Auto schnell erreichbar. Auch ärztliche Versorgung sowie Freizeiteinrichtungen sind in der Umgebung gut etabliert.
Die Anbindung an den öffentlichen Nahverkehr ist gut, Bushaltestellen befinden sich in der Nähe und garantieren eine bequeme Verbindung zu den umliegenden Ortschaften und der nächsten Stadt.
Der Bahnhof Großen-Buseck ist nur wenige Minuten entfernt. Von dort verkehren Regionalbahnen, insbesondere die RB 45 (Vogelsbergbahn).
Die Umgebung von Alten-Buseck ist von viel Grün geprägt. Spazierwege und Naherholungsgebiete laden zu Aktivitäten im Freien ein.
Über die nahegelegene Autobahn A5 oder die Bundesstraße B49 ist eine sehr gute Anbindung an umliegende Städte wie Gießen oder Grünberg gegeben.
Kurzum: Buseck besticht durch einen ländlich geprägten Charakter mit viel Grün, gleichzeitig aber durch die Nähe zur Universitätsstadt Gießen. Dadurch profitieren Bewohnerinnen und Bewohner sowohl von einer ruhigen Wohnlage als auch von den Vorzügen einer Stadt, sei es in Sachen Einkauf, Bildung oder Freizeit. Die Nähe zu Gießen macht den Ort auch für Berufspendler sehr attraktiv.
Das ruhige Wohnumfeld in der Schulstraße, kombiniert mit einer soliden Verkehrsinfrastruktur, schafft die ideale Balance zwischen Natur, Gemeinschaft und guter Erreichbarkeit.©Claus R. Menges GmbH
Angaben zur Immobilie
| Wohnfläche | 277.47 m2 |
| Baujahr | 1961 |
| Grundstuecksfläche | 1427.00 m2 |
| Zimmer | 9 |
| Kaufpreis | 639.000,00 € |
| Käuferprovision | 3,57 % inkl. MwSt. vom Kaufpreis. |
Energie
| Energieausweistyp | Energiebedarfsausweis |
| Heizungsart | Öl-Heizung |
| Endenergieverbrauchskennwert | 278,5 |
| Energieeffizienz | H |
Ausstattung
| Balkon | ja |
| Terrasse | ja |
| Garten | ja |
| Keller | ja |
| Garage | ja |
| Tiefgarage | nein |
| Stellplatz | ja |
Sonstiges
Dieses Angebot ist freibleibend und unverbindlich, Irrtum sowie Zwischenverkauf vorbehalten. Das Objektangebot wurde von uns nach bestem Wissen sorgfältig zusammengestellt. Wir können jedoch nicht gewährleisten, dass alle Angaben vollständig sind. Die Daten wurden vom Verkäufer auf die Richtigkeit hin überprüft. Eine Gewähr dafür kann nicht übernommen werden.
Wir erlauben uns, Sie darauf hinzuweisen, dass alle Texte und Lichtbilder, die in Angeboten, Exposés, auf unserer Internetseite, auf öffentlichen Portalen etc. verwendet werden, urheberrechtlich geschützt sind. Eine Verwendung der Texte und der Lichtbilder ohne unsere Zustimmung stellt eine urheberrechtliche Pflichtverletzung dar, die neben Unterlassungsansprüchen auch Schadenersatzansprüche begründet. Jegliche Nutzung der Texte und Lichtbilder durch Dritte wie z.B. rentumo.de erfolgt ohne unsere Zustimmung und wird untersagt. ©Claus R. Menges GmbH
Das müssen Sie gesehen haben!
Sie interessieren sich für ein Objekt oder möchten einen unverbindlichen Besichtigungstermin vereinbaren? Sprechen Sie mich an.
Sarah Müller
Tel.: 0641/974 66 15
s.mueller@cr-menges.de


