Helle, gemütliche 1-Zimmer-Wohnung Nähe Uniklinikum, Wingertshecke 13, Gießen
Wingertshecke 13, 35392 GießenWohnung (10212.099 WE 99 1. OG )
Beschreibung
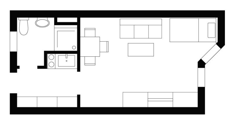
Diese charmante und gemütliche 1-Zimmer-Wohnung befindet sich im 1. Obergeschoss eines gepflegten Wohnkomplexes aus dem Jahr 1988. Mit einer kleinen, aber feinen Wohnfläche von ca. 24 m² bietet sie die ideale Wohnlösung für Studierende, Singles, Pendler und für Kapitalanleger, die eine attraktive und gut vermietbare Immobilie suchen.
Die Aufteilung der Wohnung ist gelungen. Bereits im Eingangsbereich findet sich Platz für eine Garderobe und ein Schuhregal. Der kombinierte Wohn- und Schlafbereich überzeugt mit seinem praktischen und durchdachten Schnitt. Er bietet ausreichend Raum für ein komfortables Bett, einen Kleiderschrank sowie einen kleinen Ess- oder Arbeitsbereich und lässt sich individuell und wohnlich gestalten.
Die in den Flur integrierte Pantryküche ist funktional ausgestattet und verfügt über ein Zweiplatten-Kochfeld, einen Kühlschrank sowie ein Spülbecken.
Das Badezimmer ist hell gefliest und mit einer Dusche, einem Waschbecken sowie einem WC ausgestattet.
Ein zur Wohnung gehörendes Kellerabteil Nr. 39 sorgt für zusätzlichen Stauraum.
Zur gemeinschaftlichen Nutzung stehen den Bewohnerinnen und Bewohnern eine Waschküche mit Münzwaschmaschine sowie ein Fahrradabstellraum zur Verfügung.
Ebenfalls praktisch: Im Gebäude ist ein Aufzug vorhanden, so dass ein bequemer Zugang zur Wohnung möglich ist und die alltäglichen Erledigungen spürbar erleichtert. ©Claus R. Menges GmbH
Lage
Die Wingertshecke befindet sich in einem besonders ruhigen und gepflegten Wohngebiet am südwestlichen Ortsrand von Gießen und überzeugt durch ihre harmonische Kombination aus naturnahem Wohnen und urbaner Nähe. Die Umgebung ist geprägt von ansprechender Bebauung, viel Grün und einer insgesamt sehr angenehmen Wohnatmosphäre.
Trotz der ruhigen Lage profitieren Bewohnerinnen und Bewohner von einer ausgezeichneten Infrastruktur: Die Gießener Innenstadt sowie der Hauptbahnhof sind in nur wenigen Minuten bequem mit dem Auto oder öffentlichen Verkehrsmitteln zu erreichen. Eine gute Busanbindung sorgt für Flexibilität im Alltag und ermöglicht eine schnelle Verbindung in alle wichtigen Stadtbereiche.
In unmittelbarer Nähe befinden sich diverse Einkaufsmöglichkeiten, darunter mehrere Supermärkte und Geschäfte für den täglichen Bedarf.
Ideal für Studierende und Berufstätige ist die Nähe zum Universitätsklinikum, das nicht nur als bedeutender Arbeitgeber der Region gilt, sondern auch eine erstklassige medizinische Versorgung gewährleistet. Darüber befinden sich zahlreiche Arztpraxen, Apotheken und weitere Gesundheitseinrichtungen unweit entfernt. ©Claus R. Menges GmbH
Angaben zur Immobilie
| Wohnfläche | 24.49 m2 |
| Baujahr | 1988 |
| Zimmer | 1 ZKB |
| Kaufpreis | 99.000,00 € |
| Hausgeld | 162,35 € |
| Käuferprovision | 3,57 % inkl. MwSt. vom Kaufpreis. Mit dem Verkäufer wurde eine Courtagevereinbarung in gleicher Höhe getroffen. |
Energie
| Energieausweistyp | Energieverbrauchsausweis |
| Heizungsart | Gas |
| Endenergieverbrauchskennwert | 144.90 kWh (m²*a) |
| Energieeffizienz | E |
Ausstattung
| Balkon | nein |
| Terrasse | nein |
| Garten | nein |
| Keller | ja |
| Garage | nein |
| Tiefgarage | nein |
| Stellplatz | nein |
Sonstiges
Dieses Angebot ist freibleibend und unverbindlich, Irrtum sowie Zwischenvermietung vorbehalten. Das Objektangebot wurde von uns nach bestem Wissen sorgfältig zusammengestellt. Wir können jedoch nicht gewährleisten, dass alle Angaben vollständig sind. Die Daten wurden vom Vermieter auf die Richtigkeit hin überprüft. Eine Gewähr dafür kann nicht übernommen werden.
Wir erlauben uns, Sie darauf hinzuweisen, dass alle Texte und Lichtbilder, die in Angeboten, Exposés, auf unserer Internetseite, auf öffentlichen Portalen etc. verwendet werden, urheberrechtlich geschützt sind. Eine Verwendung der Texte und der Lichtbilder ohne unsere Zustimmung stellt eine urheberrechtliche Pflichtverletzung dar, die neben Unterlassungsansprüchen auch Schadenersatzansprüche begründet. Jegliche Nutzung der Texte und Lichtbilder durch Dritte wie z.B. rentumo.de erfolgt ohne unsere Zustimmung und wird untersagt. ©Claus R. Menges GmbH
Das müssen Sie gesehen haben!
Sie interessieren sich für ein Objekt oder möchten einen unverbindlichen Besichtigungstermin vereinbaren? Sprechen Sie mich an.
Carolin Demmer
Tel.: 0641/974 66 44
c.demmer@cr-menges.de


