1 A Lage: Helle, großzügige Laden – und Bürofläche direkt in der Fußgängerzone
Kreuzplatz 7, 35390 GießenObjektnummer (50059.001 VE 01_50059.002 VE 02)
Beschreibung
Eine bessere Lage gibt es für Ihr Ladengeschäft in Gießen nicht: Eingebettet in historische Fassaden, bummeln täglich unzählige Kunden durch Mittelhessens Einkaufsmeile Nr.1. Jedes Jahr besuchen rund 11.500.000 Menschen den beliebten und belebten Seltersweg.
Die schöne Einkaufsstraße mit den vielen Geschäften und Cafés lädt zum Shoppen und Flanieren ein und ist dank der vielen Aktivitäten und des Einsatzes des BID Seltersweg äußerst gepflegt und sehr fortschrittlich. Der Seltersweg, auch Boulevard der Marken genannt, und seine belebten Nebenstraßen sind seit jeher für eine große und ansprechend präsentierte Angebotsvielfalt bekannt. Hier herrscht niemals Stillstand. (Quelle: www.seltersweg.de)
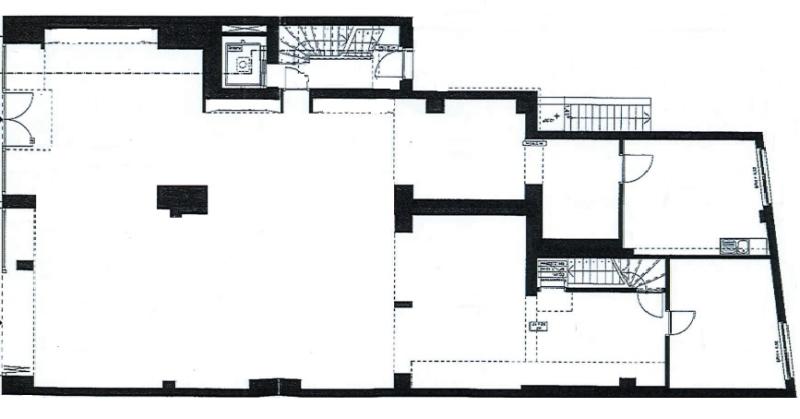
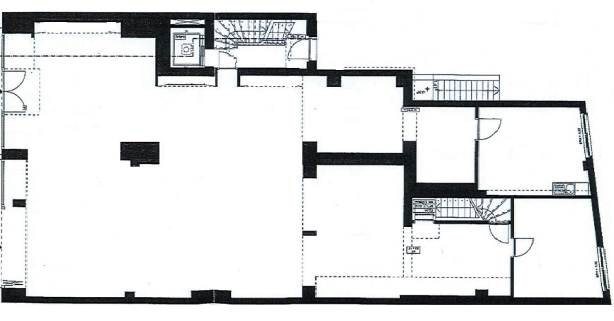
Am Kreuzplatz 7, in unmittelbarer Nähe zum bekannten Kugelbrunnen, wird nun eine großzügige Ladenfläche mit Büroräumen und ausreichend Lagerfläche frei. Sie befindet sich im Erdgeschoss, 1. Obergeschoss sowie 2. Obergeschoss eines gepflegten Wohn- und Geschäftshauses mitten auf der Flaniermeile. Insgesamt bietet die Einheit ca. 462,55 m² Gewerbefläche.
Der große Verkaufsraum ist ca. 230 m² groß und dank der großen Fensterfront schön hell. Hier können Sie Ihre Artikel gut in Szene setzen.
Hinter der Verkaufsfläche liegt ein ca. 17 m² großer Lagerraum. Eine Treppe führt in den Keller. Hier befinden sich weitere Lagerräume, Abstellräume sowie Toiletten.
Auch die Büroräume im 1. Obergeschoss und 2. Obergeschoss sind schön hell.
Das 1. Obergeschoss verfügt über vier Büroräume. Davon bietet einer dieser Räume einen Wasser- und Abwasseranschluss, so dass Sie hier eine Teeküche für Ihre Mitarbeiter*innen einrichten können. Die Räume haben eine Größe von ca. 9,60 m² bis ca. 12,70 m².
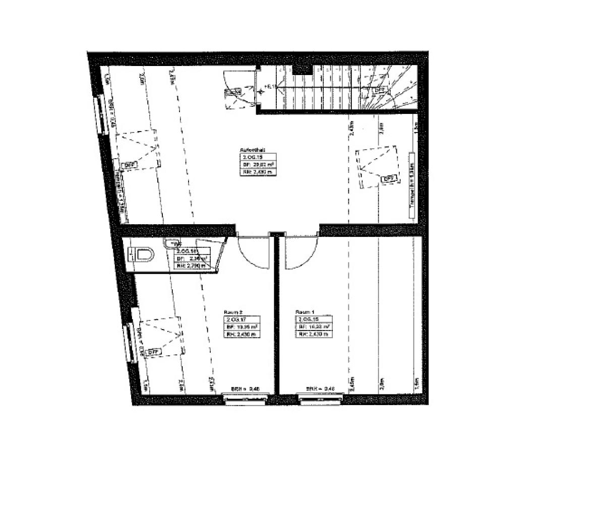
Im 2. Obergeschoss befindet sich ein ca. 30 m² großer Aufenthaltsraum, der sich u.a gut für Besprechungen eignet. Über diesen Raum gelangen Sie in zwei weitere Büroräume mit einer Fläche von ca. 13 m² und ca. 16 m². Auf dieser Ebene gibt es zudem ein WC.
Die Nebenkostenvorrauszahlung wird nach Absprache individuell festgelegt.
Gerne zeigen wir Ihnen alle Vorzüge dieser besonderen Gewerbe-Immobilie und beantworten Ihre Fragen in einem persönlichen Gespräch.©
Lage
1 A Lage in Gießen, direkt in der Fußgängerzone.
Gießen ist der wichtigste Einzelhandelsstandort der Region Mittelhessen und gilt nicht umsonst als eine der bedeutendsten und attraktivsten Einkaufsstädte in Deutschland.
Die angebotene Gewerbefläche liegt sehr zentral mitten in der Stadt, Laufkundschaft ist dank Seltersweg, der Nähe zum City Center und den schönen Seitengassen vorhanden.
Die Anbindung an öffentliche Verkehrsmittel ist unkompliziert, denn der Busbahnhof ist unweit entfernt. Auch der Bahnhof ist fußläufig in wenigen Minuten zu erreichen. Mit dem Auto gelangt man, egal ob über die Frankfurter Straße oder in Richtung Heuchelheim, schnell zu den verschiedenen Auffahrten des Gießener Rings.
Gießen ist dank seiner Universität und der Fachhochschule eine stetig wachsende, junge und lebendige Stadt. Die Nähe zu Frankfurt mit ca. 45 Fahrminuten sowie zu den Nachbarstädten Wetzlar und Marburg tragen zur Attraktivität des Standortes bei.©
Angaben zur Immobilie
| Fläche | 462.55 m2 |
| Verkaufsfläche | 230.00 m2 |
| Kaltmiete | auf Anfrage |
| Mieterprovision | 2 Kaltmieten zzgl. MwSt. € |
| Baujahr | 1949 |
| Bezug | ab sofort |
Energie
| Heizungsart | Gas |
| Energieausweistyp | Energiebedarfsausweis |
| Energieträger | Gas |
| Wärmeverbrauch/-bedarf | 210.2 kWh (m2*a) |
| Stromverbrauch | 9.6 kWh (m2*a) |
| Endenergieverbrauchskennwert | 248,6 kWh (m2*a) |
Sonstiges
Dieses Angebot ist freibleibend und unverbindlich, Irrtum sowie Zwischenvermietung vorbehalten. Das Objektangebot wurde von uns nach bestem Wissen sorgfältig zusammengestellt. Wir können jedoch nicht gewährleisten, dass alle Angaben vollständig sind. Die Daten wurden vom Vermieter auf die Richtigkeit hin überprüft. Eine Gewähr dafür kann nicht übernommen werden.
Wir erlauben uns, Sie darauf hinzuweisen, dass alle Texte und Lichtbilder, die in Angeboten, Exposés, auf unserer Internetseite, auf öffentlichen Portalen etc. verwendet werden, urheberrechtlich geschützt sind. Eine Verwendung der Texte und der Lichtbilder ohne unsere Zustimmung stellt eine urheberrechtliche Pflichtverletzung dar, die neben Unterlassungsansprüchen auch Schadenersatzansprüche begründet. Jegliche Nutzung der Texte und der Lichtbilder durch Dritte ohne unsere Zustimmung wird untersagt.
Unser aktuelles Gesamtangebot finden Sie unter www.cr-menges.de.
Besichtigungstermin gewünscht?
Sie interessieren sich für diese Gewerbeeinheit und möchten einen unverbindlichen Besichtigungstermin vereinbaren?
Carolin Demmer hilft Ihnen gerne weiter. Hier können Sie Kontakt aufnehmen:
Claus R. Menges GmbH
Tel. 0641 974 66 44
c.demmer@cr-menges.de
_800.jpg)




